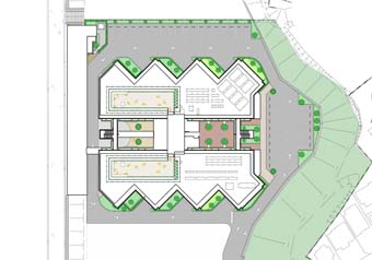
名称 :特別養護老人ホーム 笹の風 ランドスケープ
事業主:社会福祉法人 寿楽園

所在地:横浜市港南区
規模 :10,894.46m2
竣工 :2017年1月

ランドスケープ:カネミツヒロシセッケイシツ
建築 :健康設計+角倉剛建築設計事務所
施工 :馬淵建設

特別養護老人ホーム 笹の風 ランドスケープ
khdo2004-1222